Ремонт на апартамент - Цялостен Процес в София Консултация, изготвяне на технически чертежи, аранжировки, функционално зониране на помещенията, ВиК и Ел. позиционирене, дизайни на стаи и бани и изпълнение на проекта.

Предлагаме професионални строителни ремонти в София – от малки довършителни дейности до цялостни ремонти на апартаменти, къщи и офиси. Работим с опитни майстори, доказани материали и ясни срокове.

Извършваме шпакловка, боядисване, гипсокартон, ВиК и електро инсталации, ремонт на баня, подови настилки и топлоизолация. Предлагаме цялостни решения, съобразени с вашия бюджет.

Работим в София – Люлин, Младост, Дружба, Лозенец, Център и всички квартали.

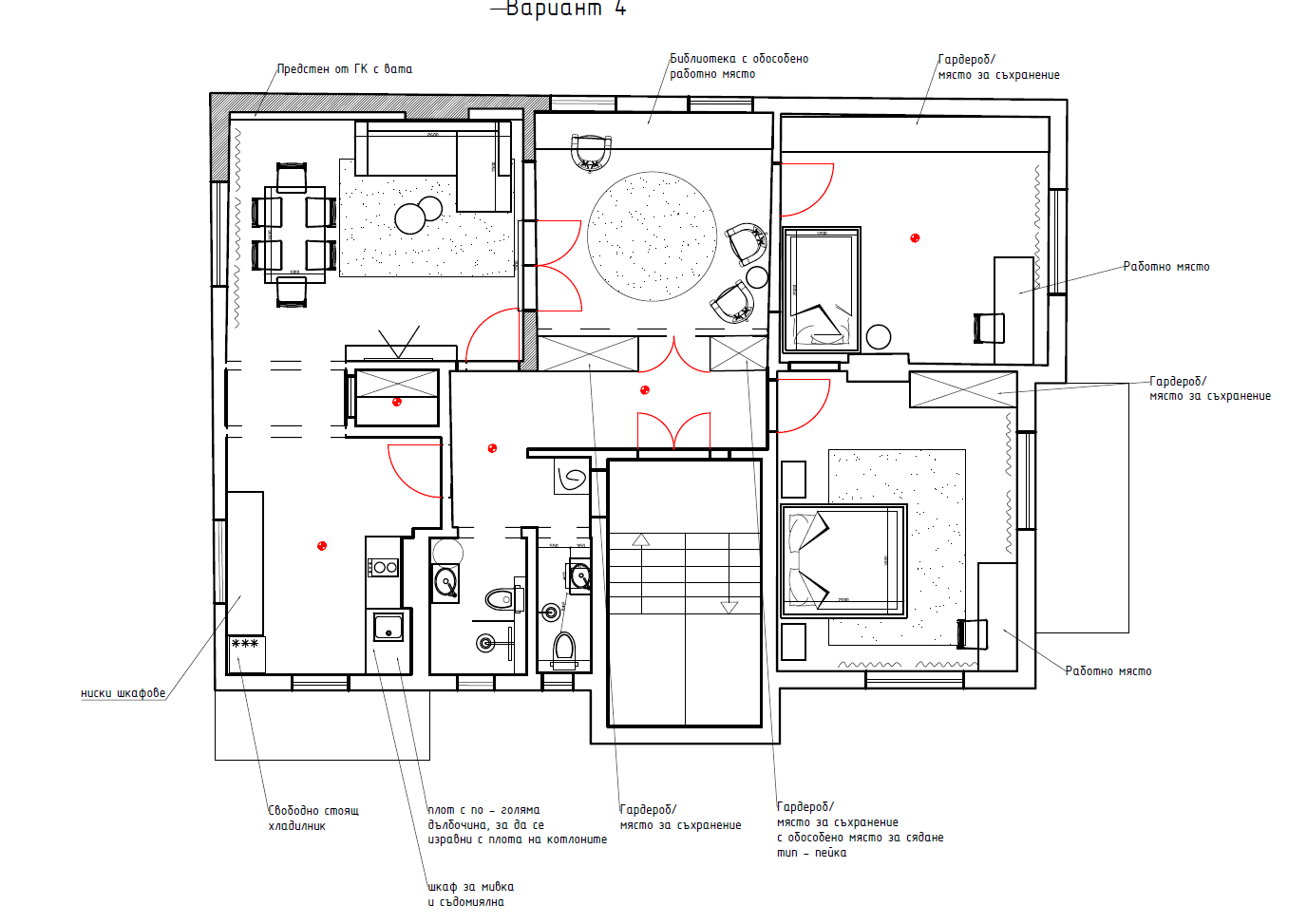
Аранжировки и строителни отвори на зидария

Аранжировка 1

Аранжировка 1

Аранжировка 2

Аранжировка 2

Аранжировка 3

Аранжировка 3

Аранжировка 4

Аранжировка 4

Зидария строителни отвори

Зидария строителни отвори

Вариант на бани и тоалетна

баня вариант 1

Вариант баня 1

баня вариант 2

Вариант баня 2

баня вариант 3

Вариант баня 3

баня вариант 4

Вариант баня 4

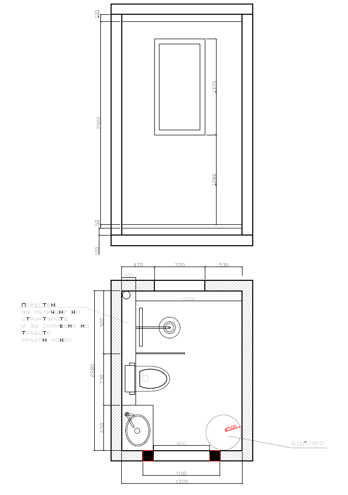
тоалетна вариант 1

Вариант тоалетна

Вариант на разпределения (Контакти и осветление)

контакти разпределение

Разпределение контакти 1

контакти разпределение

Разпределение контакти 2(избрано)

осветление - разпределение

Разпределение осветление

осветление - разпределение

Разпределение осветление ключове

Изтегли аранжировки (PDF)

Начало - къртене, извозване, чистене

Ремонт апартамент - къртене, извозване, чистене

Ремонт апартамент - къртене, извозване, чистене

Ремонт апартамент - къртене, извозване, чистене

Ремонт апартамент - къртене, извозване, чистене

Ремонт апартамент - къртене, извозване, чистене

Ремонт апартамент - къртене, извозване, чистене

Ремонт апартамент - къртене, извозване, чистене

Ремонт апартамент - къртене, извозване, чистене

Ремонт апартамент - къртене, извозване, чистене

Ремонт апартамент - къртене, извозване, чистене

Ремонт апартамент - къртене, извозване, чистене

Ремонт апартамент - къртене, извозване, чистене

Ремонт апартамент - къртене, извозване, чистене

Ремонт апартамент - къртене, извозване, чистене

Ремонт апартамент - къртене, извозване, чистене

Ремонт апартамент - къртене, извозване, чистене

Ремонт апартамент - къртене, извозване, чистене

Ремонт апартамент - къртене, извозване, чистене

Ремонт апартамент - къртене, извозване, чистене

Ремонт апартамент - къртене, извозване, чистене

Ремонт апартамент - къртене, извозване, чистене

Ремонт апартамент - къртене, извозване, чистене

Ремонт апартамент - къртене, извозване, чистене

Ремонт апартамент - къртене, извозване, чистене

Ремонт апартамент - къртене, извозване, чистене

Ремонт апартамент - къртене, извозване, чистене

Ремонт на апартамент в София – проект, разпределение, Eл и ВиК